Pripojovacia hadica 1" flexi s kolenom 70 cm

  • 100%
    (2)
  • IBO
  • ID: 28177
Nerezová flexi hadica sa používa hlavne na pripojenie čerpadla k tlakovej nádobe a flexibilné spojenie filtrov na vodu s potrubím. Hadica je určená na distribúciu vody s teplotou do 90°C.
Na sklade Posielame ihneď
Cena s DPH
14,96 €
Pracovný tlak:
1.6 Mpa
Maximálna pracovná teplota:
90 °C
Vonkajší priemer:
32mm
Závit:
GW x GZ (1” x 1”)
Záruka:
2 roky
Hmotnosť (kg):
1
Rozmer pripojenia:
1"

Antivibračná nerezová flexi hadica 1" s kolenom 70cm

Nerezová pripojovacia hadica 1" flexi s kolenom 70 cm slúži k prepojeniu dvoch nespevnených častí tlakového systému tak, aby sa zabránilo prenosu vibrácií, alebo na kompenzovanie dilatačných pohybov.

  • Pružné antivibračné hadice sú vyrobené zo syntetickej gumy EPDM v kovovom oplete chrániacom výtlačné potrubie.
  • Sú schválené na styk s pitnou vodou.
  • Hadice sú zakončené mosadznými koncovkami, na jednej strane kolenovou prípojkou s otočným šróbením vybaveným tesnením, na druhej strane vsuvkou.
image_696654aaaca349ac.png
image_700654aaaca34aa3.png

Použitie 1" flexi hadice s kolenom

  • Hadica sa používa hlavne pre pripájanie čerpadiel k tlakovým nádobám ale aj na flexibilné spojenie filtrov na vodu s potrubím.
  • Na distribúciu vody vo vykurovacích a klimatizačných systémoch.
  • Na všetky spoje určené na distribúciu vody s teplotou do 90°C.

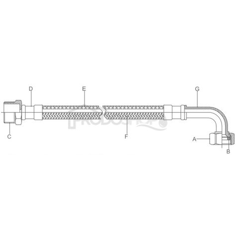
Materiály použité vo flexi hadici

  • A: Mosadzná matica
  • B: Gumová podložka EPDM
  • C: Koncovka samec
  • D: Objímka z nehrdzavejúcej ocele AISI 304
  • E: Hadica z EPDM, PVC, PEX 
  • F: Hliníkový drôt
  • G: Mosadzné koleno 
image_708654aaaca34b3d.png
Názov

1" flexi s kolenom 60 cm

1" flexi s kolenom 70 cm

1" flexi s kolenom 80 cm

100 %
2 recenzie Pridať recenziu
  • 5 hviezdičiek>
    2x
  • 4 hviezdičky>
    0x
  • 3 hviezdičky>
    0x
  • 2 hviezdičky>
    0x
  • 1 hviezdička>
    0x
  • Top recenzie zo Slovenska

  • Overený zákazník
    25. november 2022
    Overený nákup
    kvalitné prevedenie
  • Overený zákazník
    25. november 2022
    Overený nákup
    kvalitné prevedenie
Chcete sa dozvedieť viac? Napíšte nám. Odpovieme do 24h.
Produkt bol úspešne pridaný do košíka